Living Stones
Sanctuary Expansion

"You yourselves like living stones
are being built up as a spiritual house"


-1 Peter 2:5

Introduction

Trinity is a growing Anglican Church in Lafayette, LA. Founded with 25 empty-nesters in 2016, we have increased to 125, from all ages and stages of life. We average around 75 on a Sunday, with 15-20 children. We are nearly out of room. In gratitude for the gospel of Christ, joy at the growth of his Church, and in order to better serve God and neighbor, we now seek to expand our sanctuary and double our capacity.

Our Key Verse

“You yourselves like living stones are being built up as a spiritual house” -1 Peter 2:5

This verse reminds us that we don’t build for the sake of the building itself. Rather, we build to support our growing congregation of living stones, as a legacy for the generation of Christians to come.

Testimonies of Living Stones

We asked our members what it means for them to be a living stone, and how God is building them up as a spiritual house at Trinity. They wrote a series of testimonies, which we compiled into a devotional booklet.

Living Stones Video

Next, we took video of our members discussing their living stones testimonies. The result was our campaign video.

LIVING STONES TESTIMONIES

Here I found warmth and fellowship and Bible-based sermons and teachings, a church with living stones. A single stone, which I was, comes alive when joined to other living stones to form a church community. That is what I needed and what I have found at Trinity. As a living stone, I will support our church in whatever capacity God calls me to do. I feel blessed to be “built into a spiritual house.”

LIVING STONES TESTIMONIES

We as believers are living stones in God’s new temple. I thank the Lord for building his church here at Trinity. I am also very thankful to the “living stones” that were here at Trinity before me. Because of their faith, insight, and spiritual living sacrifices, we have the current Church where we can praise and worship our Lord! I pray we can be as faithful in building up HIS church, so that those that come after us can experience the Lord’s love, grace and blessings as we have and continue to do.

LIVING STONES TESTIMONIES

Being a Living Stone means wanting to be a part of the growth of our church in whatever way I can by asking God’s help and direction for Trinity as we seek to grow our congregation and to expand our sanctuary. And as we grow in number, I pray for us to never lose sight of the importance of welcoming each new member into our loving church family and ensuring that each one has that splendid feeling of belonging to Christ and to each other.

LIVING STONES TESTIMONIES


God’s spiritual house here on Earth is built with and on Living Stones. Almost forty-five years ago a devoted group of Presbyterians began this process for Trinity. We Living Stones are willing to work and sacrifice today for the prospect of growing God’s kingdom for future generations. Just as they were many years ago, we are being called on to carry forward that task with an expanded house for worship.

Living Stones Testimonies

We conclude our service with the post communion prayer to go do the work we need to do. Our work now is to make more room for people to worship and experience the mercy and peace of God on oer at Trinity. When the Jews were wandering nomads their “church” was a tent. We need a bigger tent. Bishop Felix preached on September 29 that we can either “maintain” Trinity or work to make it grow. In these scary times we need to dig deep into our pockets and nd the money to build a bigger church.

The History of Our Sanctuary

Built in 1991 for Trinity Presbyterian, our small sanctuary reflected the sparse population of south Lafayette at the time. It was a good size for our church plant in 2016, through our merger with Trinity Presbyterian in 2018 and purchase of the property in 2020.

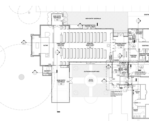
Sanctuary Expansion

We now seek to double the capacity of our sanctuary, to accommodate Sunday attendance of 150-200. The total interior expansion is about 3000 square feet, resulting in a new west elevation to the main road.

Additional Facilities

When attendance doubles, we will need expanded spaces for music, fellowship, parking, and more. These are included in the project.

Sanctuary

 Expanded sanctuary will more than double capacity, from 90 to 210.

Music & Choir

Larger platform for musicians and our growing choirs.

Fellowship

New and renovated spaces for coffee hour and fellowship.

Parking

Parking lot expanded and beautified, to welcome our growing church.

Bell Tower

A new bell tower, functioning as a second entrance to the sanctuary.

Family Center Connector

A new connector to the family center, with 2 new bathrooms.

Classic Christian Architecture

The design draws on classic principles of Christian architecture. The church will now have the shape of the cross, which will frame an exterior courtyard.

The style is gothic, with pointed arches, stained glass, and a bell tower. These create a felt connection with Christian tradition, draw the eye upward, and inspire wonder.

Cost & Campaign Progress

The cost of the project is estimated at $1.6 million.

Gifts and commitments are now at $1.38 million.

We are 86% of the way to our goal!
Would you prayerfully consider a contribution?

"You yourselves like living stones are being built up as a spiritual house..."

1 Peter 2:5